久能山東照宮を3Dスキャナーで計測撮影
御社殿(国宝)の外観を計測撮影しました。久能山東照宮創建400年を超える歴史の中で、初めての試みです。
2020-08-04 08:00
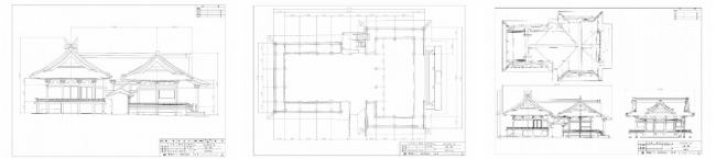
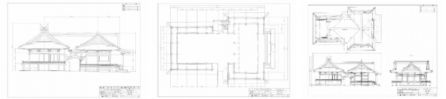
御社殿は漆塗特有の艶やかな姿を誇る荘厳な権現造りの建造物です。このように繊細で複雑な構造物を3Dレーザースキャナーで撮影するのは初めての試みでしたが、全体像、形状、寸法など構造的な要素を忠実に記録することができました。
このたび東海テクノ株式会社(静岡県静岡市清水区宮加三700、代表取締役社長 中嶋康喜、TEL:054-336-1161、https://www.tokaitechno.co.jp)は、3Dスキャナーで久能山東照宮御社殿の計測撮影を行いました。

撮影の目的は、美しい東照宮御社殿のありのままの姿(外観)をデータで残しておくことです。データとは、3Dレーザースキャナーで収集した点群データです。点群データは現状を忠実に記録する優れた手段で、現在目の前にある対象物を寸分の狂い無くデータ保存できます。保存したデータの利用方法は様々で、例えばメンテナンスや修復時に、本来あるべき姿を再生・確認することができます。また、定期計測をすることによって対象物の変化点を抽出するというようなことも可能です。
こちらが点群データによるムービーです。
こちらは点群データをもとに起こした見取り図になります。

貴重な文化財の現状をありのままデジタルデータで残しておきたい、将来のメンテナンスや修復時のためあるべき姿を記録しておきたい、そのようなご要望にぜひ解決策を提供したいと思います。
お問い合わせをお待ちしております。
画像・ファイル一覧


