大改装リノベーション木造住宅含む11戸の新規販売 (事業主 株式会社リアル)
同日開催「リノベーションEXPO JAPAN NAGOYA」にも 当物件サンプルブース出展 (主催:一般社団法人リノベーション住宅推進協議会)
株式会社リアル(本社:名古屋市中区、代表取締役:片田 一幸)は、10月14日(土)より、名古屋市内の築20年のリノベーション木造住宅の販売を開始します。また、リノベーション事業『リアリノ』を冠したリノベーションマンションを9戸、及びリノベーション戸建を2戸、計11戸を10月中に新規販売いたしますのでお知らせいたします。

同日の10月14日・15日には、一般社団法人リノベーション住宅推進協議会(当社代表が理事。また以下「リノベ協議会」)が主催するリノベーションの全国最大規模のイベント「リノベーションEXPO JAPAN」(以下「リノベEXPO」)が愛・地球博記念公園(モリコロパーク)地球市民交流センターにて開催されます(総来場者数1万人を目標)。セミナー・展示・見学会・ワークショップ・トークショーなど、リノベーションや暮らしに関する多彩なイベントが開催される同イベントにて株式会社リアルは企業ブースの出展を行います。

リアリノとは、リアルオリジナルの仕様を施したリノベーション事業のブランドです。
多くの物件を取り扱う当社が培ったノウハウを使い、「高品質・低価格・安心」にとことんこだわり海外の良質な商品を取り入れて、新築に負けない現時代のニーズにあわせた魅力あふれる住居、そして、誰もが手に届く価値のある住居を提供いたします。
またリノベ協議会が定める統一規格に則った検査をしたうえで改修工事をし、その内容を履歴情報として専用サーバーに保管するRマーク住宅にしています。特に戸建に関しては国土交通省のガイドラインに基づいたインスペクションをし瑕疵保険付きとして対応しています。
リノベーション戸建
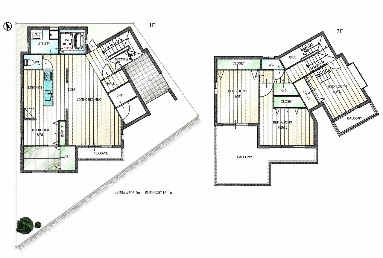
(1)「名古屋市中村区八社戸建」販売価格:2,999万円
現代のニーズに応えた、戸建でありながら宅配BOXを備えたリノベーション邸宅
10月14・15日 販売開始 オープンハウス
物件概要
4LDK+屋根裏収納+カーポート
所在地 : 名古屋市中村区八社2丁目113-1
構造・規模: 木造2階建
築年月 : 1997年(平成9年)5月
敷地面積 : 118.80m2(35.93坪)
建物面積 : 109.00m2(32.97坪)
1F面積 : 59.00m2(17.84坪)
2F面積 : 50.00m2(15.12坪)
リノベーションポイント
・1階南側和室を玄関ホールと一体化
来客時に広く使える空間を設けました。個室として間仕切る事も可能です。
・室内照明を全てLED化
ダウンライトを多く採用し、すっきりと明るい空間を表現しました。
・2階南側洋室の天井高をUP
屋根裏部分の天井高を最大限に上げて、開放感が生まれました。廊下から上がれる大容量の屋根裏収納もあり、無駄のない造りになりました。
・インスペクション済み、R5適合住宅
リノベーション工事前にインスペクションを実施し、全ての指摘箇所を改修しました。一般社団法人リノベーション住宅推進協議会の定める適合リノベーションの品質基準に則ったR5住宅(適合検査実施済み、瑕疵保険加入)のアフターサービス保証付き。
名古屋市中村区八社戸建間取

(2)「名古屋市名東区香流戸建」
一級建築士とコラボ、鉄筋コンクリート造リノベーション邸宅
10月28・29日販売開始 オープンハウス
物件概要
所在地 : 名古屋市名東区香流2丁目1406
構造・規模: 鉄筋コンクリート造2階建
築年月 : 1980年(昭和55年)8月
敷地面積 : 132.23m2(39.99坪)
建物面積 : 116.65m2(35.28坪)
1F面積 : 63.57m2(19.83坪)
2F面積 : 53.08m2(16.05坪)
建築士 : 川辺 勝也氏(株式会社ファーバルホーム 代表取締役)に設計デザインを依頼
名古屋市名東区香流戸建間取

川辺氏プロフィール
ファーバルデザイン一級建築士事務所にてリノベーション事業を始め、注文住宅や商業建築、不動産事業など、設計から建築までを手がける。その豊富な知識量から、今回、不動産再販事業でコスト削減を必要とする中でも様々なデザインのアイディアを提案下さいました。
事業名称 : ファーバルデザイン
運営事業者: 株式会社ファーバルホーム
代表者 : 代表取締役 川辺 勝也
設立 : 2001年12月
所在地 : 名古屋市東区徳川2-16-19
川辺氏

(3) 「グローリアス長久手南第2 401号室」販売価格:2,488万円
ウォークスルークローゼット付リノベーション
10月14・15日販売開始 オープンハウス
物件概要
所在地 : 長久手市喜婦獄816番地
構造・規模 : 鉄筋コンクリート造8階建4階部分
築年月 : 1997年3月
専有面積 : 80.88m2(24.46坪)
バルコニー面積: 12.24m2(3.70坪)
リノベEXPO会場近くの物件で、同日オープンハウスを開催
販売中(リノベーション済)
「コンセール善進」
所在地 :名古屋市港区
築年月 :1997年2月
専有面積:80.85m2
「モアグレース若竹III」
所在地 :一宮市
築年月 :2002年10月
専有面積:87.16m2
「宝マンション名駅西」
所在地 :名古屋市中村区
築年月 :1995年7月
専有面積:82.29m2
「藤ヶ丘シティハウス」
所在地 :長久手市
築年月 :1998年8月
専有面積:91.22m2
「ロフティ甚目寺III」
所在地 :あま市
築年月 :2005年4月
専有面積:103.94m2
「メイツ松原」
所在地 :名古屋市中区
築年月 :2002年4月
専有面積:72.45m2
「チサンマンション名東II番館」
所在地 :名古屋市名東区
築年月 :1999年1月
専有面積:82.89m2
「グローリアス緑区ほら貝」
所在地 :名古屋市緑区
築年月 :1997年3月
専有面積:72.37m2
「グローリアス香久山第2」
所在地 :日進市
築年月 :1995年10月
専有面積:5.43m2
10月販売予定(事業主 株式会社リアル)
(4) 「サンシティガーデンヒルズ東郷」
所在地 :愛知郡東郷町
築年月 :1992年3月
専有面積:75.32m2
(5) 「シャトー岩倉」販売価格:1,888万円
所在地 :岩倉市
築年月 :1990年5月
専有面積:84.95m2
(6) 「アソシアード神宮東参番館」
所在地 :名古屋市瑞穂区
築年月 :2004年1月
専有面積:95.50m2
(7) 「カルティア徳川」
所在地 :名古屋市東区
築年月 :1999年12月
専有面積:76.36m2
(8) 「シャトレ愛松千代田橋」
所在地 :名古屋市千種区
築年月 :2003年7月
専有面積:88.91m2
(9) 「宝マンション姥子山」
所在地 :名古屋市緑区
築年月 :2000年7月
専有面積:79.47m2
(10) 「シャトレ愛松稲沢III」
所在地 :稲沢市
築年月 :1996年1月
専有面積:79.37m2
(11) 「プレジデント北方」
所在地 :一宮市
築年月 :1995年9月
専有面積:89.74m2
会社概要
商号 : 株式会社リアル
代表者: 代表取締役 片田 一幸
所在地: 〒460-0007 名古屋市中区新栄2丁目1番34号 リアル新栄ビル1F
設立 : 2000年12月12日
URL : http://www.real-inc.jp/


































