不動前駅から徒歩5分。うっとりするホワイトスケルトンオフィスが登場!テレフォンブース、会議室、受付ブースつき充実設備のセットアップオフィス物件をご紹介!
株式会社しんか(東京都渋谷区 | 代表取締役 久田 友彦)が運営するスケルトン物件に特化した物件ポータルサイト「SKELETON OFFICE TOKYO(スケルトンオフィス東京)」が新着記事を公開いたしました。

スケルトンオフィス東京では、天井が高い、コンクリート打ちっぱなし、リノベーション、倉庫風物件など”かっこよくておしゃれな物件”を中心に物件をセレクトして物件を掲載しています。
今回、不動前の「Biz−Field目黒」の募集を開始しました。内見も随時受付をしています。
不動前駅 5分、賃料42.3万、55.29㎡のセットアップオフィス物件です。
うっとりするホワイトスケルトンオフィス
▶︎Local history
不動前駅から徒歩5分。目黒、五反田も徒歩圏内。大通り沿い(山手通り)にあり視認性良好です。隣のビルはクラフトビールと燻製お肉料理のお店があり、周辺にはカジュアルフレンチ、クラフトビールと広島お好み焼き、薪窯で焼き上げるPIZZA屋と充実のランチタイムに。

▶︎Space
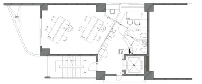
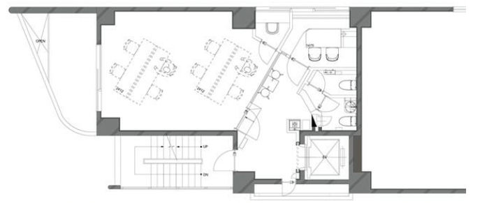
エレベーターを降りて正面に受付モニター台とその先には執務室、右手に4名掛け会議室と男女別トイレがあります。執務室は天井が抜けたホワイトスケルトン。天高は3.1mと開放感があります。床壁は綺麗に貼ってあるので家具を入れればそのまま入居できます。室内にはzoom会議や集中作業に最適なテレカンブース1室つき。


▶︎writers comment
スケルトン天井の今風なおしゃれ空間でありながら、水回りや会議室など綺麗な設備が充実したセットアップオフィスです。執務質は8名程度で利用できる広さで、トイレや会議室が分かれているので導線やレイアウトの自由度が高そうです。会議室前にある2名掛けの小テーブルでちょっとした打合せや休憩ができるのもgoodポイントですね。



DATA
物件名:Biz−Field目黒
所在地:東京都品川区⻄五反田3-15-8
最寄駅:不動前駅 5分
賃料:42.3万
管理費:なし
面積:55.29㎡
階層可能範囲:2階
原状回復:要確認
敷金:4ヶ月
礼金:なし
償却:なし
条件:
設備:個別空調、男女別トイレ、給湯、光ファイバー、24時間セキュリティー、エレベーター
築年:1992年
保険:要加入
構造規模:鉄骨鉄筋コンクリート造地上9階建て
契約内容:普通賃貸借2年
備考:受付台、4名掛け会議室、テレカンブース(1室)付き
情報掲載社:株式会社しんか
取引様態:仲介
最終確認日:2022年11月18日
No.TYO-23-23-4
物件探しお手伝いします
スケルトンオフィス東京では「Biz−Field目黒」をはじめとした、かっこよくておしゃれな物件を日々掲載しております。社員が出社したくなるような、お客さんを招きたくなるような、そんな物件揃ってます。



他にも「天井が高い物件を探している」「内装をガッツリ作り込みたい」などオフィスや店舗物件を探している方は以下よりお問い合わせください。
お問い合わせはこちら
スケルトンオフィス東京
事業内容
・スケルトンオフィス物件の仲介
・オフィス家具や植物の提供
・スケルトンオフィス化のお手伝い(条件交渉、空間作り、サブリース)
| Web |
https://skeleton-office.tokyo/
| Instagram |
https://www.instagram.com/skeleton.office.tokyo/
| Facebook |
https://www.facebook.com/skeleton.office.tokyo/
| LINE |
https://page.line.me/510mmzgk?openQrModal=true
| Twitter |
https://twitter.com/skeleton_office
| Youtube |
https://www.youtube.com/channel/UCKkgakWHsZxETS_yF5VOU6g
運営会社:株式会社しんか
提供サービス
・居抜きオフィス探し、居抜きオフィス退去
・シェアオフィス企画、運用・スペース運用
・WEB会議ツール提供、企業のデジタル化、オフィス移転コンサル
・いらなくなった家具を捨てない(https://eco-kagu.space/service/)
・起業支援サポート(https://startup-company.net/)
・高級家具の再利用(https://sinca.co.jp/rental-service/)
| TEL |
03-4510-6460
| Web |
https://sinca.co.jp/











