【山口県周南市】文化庁登録有形文化財 旧市長公舎を使ってみませんか?
大正15年に海軍燃料廠(かいぐんねんりょうしょう)の廠長官舎(しょうちょうかんしゃ)として建築され、歴代の廠長や市長が居住してきました。
和と洋が調和した様式で、当時の面影が残る貴重な建物です。この度、多くの皆さんに親しんでもらうため、貸し付けを開始しました。
小規模な行事や講座などの誘客につながる事業や、写真や動画の撮影など、公舎の雰囲気や魅力を生かした事業に活用してください。
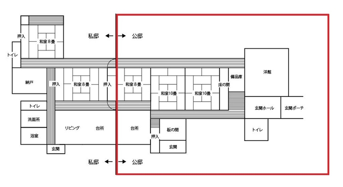
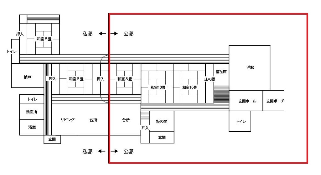
※私邸部分は貸付けいたしません。

旧市長公舎の歴史
明治38年(1905年) 徳山海軍練炭製造所設立
大正10年(1921年) 徳山海軍燃料廠へ改組
大正15年(1926年) 燃料廠の廠長官舎として建築
昭和20年(1945年) 5、7月:徳山大空襲 8月:終戦
昭和25年(1950年) 国から払い下げを受ける
貸し付けの概要

■賃貸料 1,500円~(税・光熱費込み) ※下記時間帯ごと
■時間帯
▼午前…9時~13時
▼午後…13時~17時
▼夜間…17時~21時
※連続7日間まで、12/29~1/3は貸付不可です。
■所在地 周南市慶万町3-15

■貸付範囲
▼公邸部分…150平方メートル
▼庭…900平方メートル
■契約形態 建物一時使用賃貸借契約
■対象 個人・法人・団体 ※居住・所在地は問いません。
■構造 木造平屋建
■設備 水道・電気・IHヒーター・エアコン・冷蔵庫・電気炉壇・座卓・
駐車場(正門内外に各4、5台程度)
■禁止事項 飲酒・宿泊・火気使用・大音量を発する活動・喫煙 他
旧市長公舎の様子


貸し付け手順等の詳しい情報は周南市ホームページをご覧ください。
周南市施設マネジメント課ホームページ
https://www.city.shunan.lg.jp/soshiki/5/105669.html
お問合せ
周南市 施設マネジメント課 財産管理担当
〒745-8655
山口県周南市岐山通1-1
周南市役所本庁舎4階
TEL:0834-22-8281
E-mail:shisetsu@city.shunan.lg.jp






