府中駅前の公共空間でイベントを実施してみませんか?
府中駅前のけやき並木通りおよび府中スカイナードが、どなたでもご使用いただけます!

府中駅前の景色を、一緒に作りませんか?
まちづくり府中(所在地:東京都府中市、代表取締役社長:槇ヶ垰俊一)は、府中市と都市利便増進協定を締結し、府中駅前の公共空間を民間事業者や市民活動団体等にご使用いただける取り組みを2024年3月より開始しています。
これにより、今までは市の主催・後援事業でのみ使用が可能であった駅前公共空間を、京王線府中駅前の賑わい創出を目的としたイベント等でご使用いただけるようになりました。
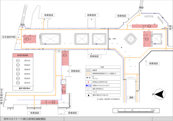
使用希望者は、けやき並木通りと府中スカイナード北口・南口(ペデストリアンデッキ)の指定のエリアを使用することが出来ます。
使用を希望する民間事業者・民間団体の皆さまは、使用の手引きをご参照の上お申し込みください。
※府中市の後援事業は申込不要ですが、日程や場所の重複を防ぐため、まちづくり府中より「使用確認書」を発行します。 道路使用の手続きにおいてこの確認書が必要となりますので、企画の早い段階でまちづくり府中へご相談ください。
使用に際して必要な関係機関との協議などをまちづくり府中がサポートします。
[貸出案内パンフレットはこちら(PDF)]
[事前相談フォームはこちら]
[公共空間活用事業での使用予定はこちら]
けやき並木通り

大國魂神社の参道でもある府中を象徴するけやきの並木であり、国の天然記念物に指定されています。
約150本のけやきが全長約500メートル続き、府中市民の憩いの場ともなっています。
日曜日・祝日の12時~18時までは歩行者天国となり、マルシェイベントや音楽イベント等、様々な催しも行われています。
【参考】休日の歩行者交通量(7時~19時、令和元年度、府中市調査)
・けやき並木通り28,330人

府中スカイナード

府中駅改札から出てすぐのペデストリアンデッキである府中スカイナードは、府中の街を東西南北につなぎ、府中駅周辺のアクセスには欠かせない存在です。
足元には公共交通の結節点のロータリーが展開されており、府中駅から各所に向かう人々が行き交う府中市の大動脈です。近年徐々にイベント活用なども行われるようになっています。
【参考】休日の歩行者交通量(8時~22時、平成30年度、府中市調査)
・府中駅北口スカイナード(183 FUCHU FAN ZONE 両側出入口合算):14,392人
・府中駅南口スカイナード(ラグビーモニュメント前):29,165人

備品の貸出について
イベントの開催に際して、備品の貸出も行っております。
備品の貸出を希望する場合は、事前相談のうえ申込書に希望物品をご記入ください。
使用可能エリア・料金表

















