「ビル再生100の物語」ウラワザで客の間口を3倍に!?
ビル再生100の物語 第6話
テナワンでは、これまで多くのビルの空室対策や賃貸運営を行ってきました。
それぞれの問題を解決してきたビル再生の事例を「100の物語」としてこれから公開していきます。
今回は、新宿の、分譲マンションの低層階にあるビル区画でのお話です。
ウラワザで客の間口を3倍にした事例
柱デカっ! 物件
最初に見た時の印象は、「柱デカっ!」でした。
その存在感はまるでパルテノン神殿のそびえたつソレのような。。

それもそのはずで、この物件は上の方の階が住宅になっていて、どうしても建物的に柱どうしの間口が狭くなっています。
(オーナーさん)「もう、2年もテナントが決まってないんだよね」
(僕ら)「内見のお客さんも来ないんですか?」
聞いてみると、2,3か月に一人ぐらいは来てたということですが、坪当たりの単価は周辺の競合ビルよりアタマひとつ安いのに、どうも妙です。
と思った我々は、周辺の競合ビルの募集状況を細かく調べてみました。
内見が少ない原因は?
「柱のせいだけじゃないんじゃないかな」
新宿御苑駅からほど近いので、そもそもテナントに見向きもされない場所でもないのに、内見がそんなに少ない。ということは、
・物件がちゃんと知られていない?
・70坪をまとめて借りるテナントにとってはマンションと一緒なオフィスは敬遠される?
・安さに惹かれて内見に来ても、柱の存在感にヒいてしまう
多分全部その通りなんでしょう。
特に、70坪も使うテナントさんというのは、一人当たり面積が2、3坪だとすれば2,30人の所帯です。
そこそこの規模の中堅企業か、大手の営業所だとすると、やっぱりエントランスがマンションと同じというのはできれば避けたい気分になるでしょう。
分けて貸す? それとも?

「じゃあ、いっそのこと分割しちゃいましょう」
という提案を出すことにしたのですが、
「ちょっと待て、あらかじめ間仕切り作らなくてもいいんじゃないか?」と思い直しました。
先に2分割にする準備だけしておいて、ワンフロアで使うかもしれないテナントさんに対しても同時に営業する、が正しい作戦のように思えてきました。
だって、内見が2,3か月に1件しかないということは、まず客の間口を広げた方が有利だからです。
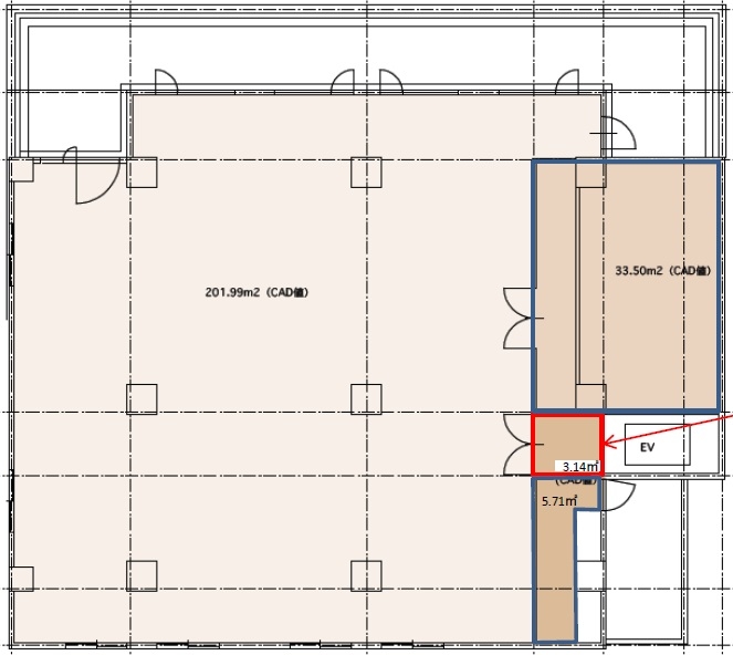
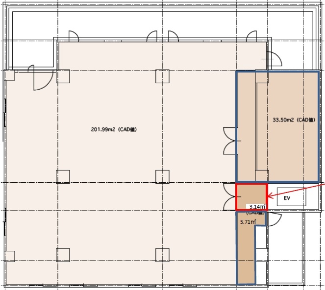
1部屋で3種類、2週間で入れます!
分割ラインを決めて、照明や空調設備をどう対応させたらいいかや、消防署と避難経路の取り方についても確認して見積もりと工期だけ固めておきました。

「実際に分割希望のお客さんが申込み入れてくれたら2週間で入居できます」
という状態で、小さい区画2つとワンフロア一括で、合計3つの商品を同時に募集することにしました。

結果は……
募集開始後は、小さい区画を希望するお客さんがすぐ見つかりました。
当初の予定通りスピーディーに間仕切り工事を行い、引き渡し。
残りの区画もほどなく決まってメデタシ、な結果となりました。





