『淡路島のプール付き一棟貸し KITOW』を発表
~今までにない淡路島の山間エリア宿泊施設。4月オープン~
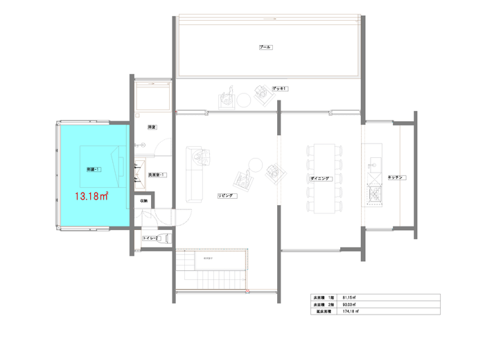
株式会社ジーホワイト(本社:兵庫県西宮市、代表:五味岡 龍)は淡路島の山間部、手付かずの自然を独り占めできる一棟貸しの宿泊施設 KITOWを2023年4月24日にオープンします。絶景が目の前に広がる屋外プール、自然の音に囲まれるバーベキュー施設など、山間部の自然を活かした施設を備え、1日1組限定の完全なプライベート空間でゆったりと流れる贅沢な時間を過ごしていただけます。


URL: https://kitow.jp/
『淡路島のプール付き一棟貸し KITOW』の特徴・詳細
・淡路島で生まれ育った当社代表が「その旅に感動を」をテーマに、島の良さを伝えたいと作った宿です。
・設計は淡路島の一級建築士事務所ヒラマツグミの平松克啓。島の良さを最大限に引き出す見事な設計です。
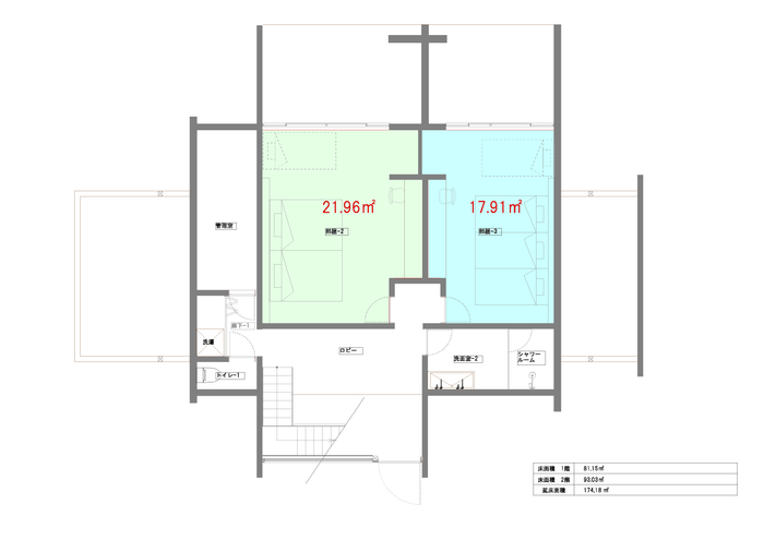
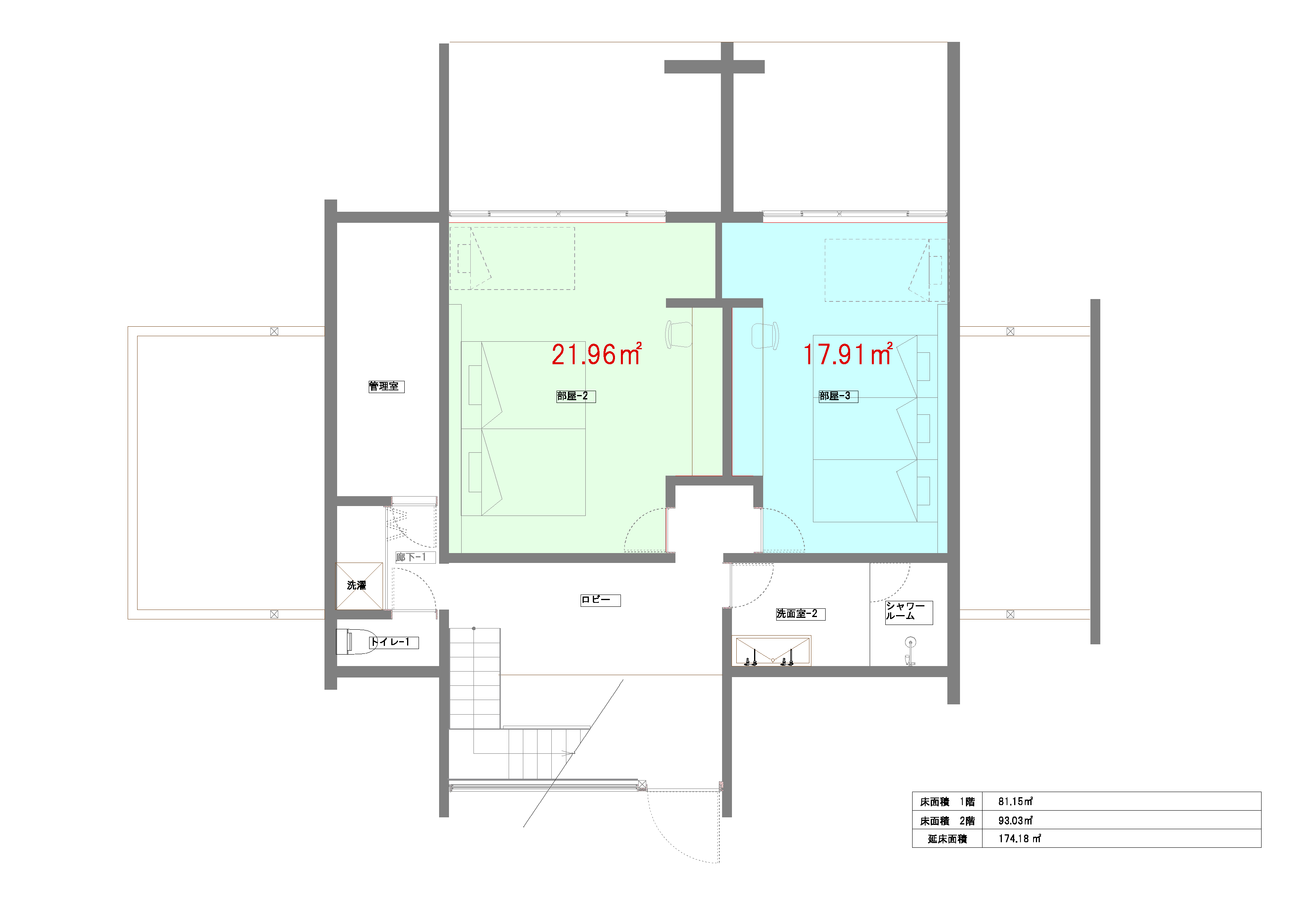
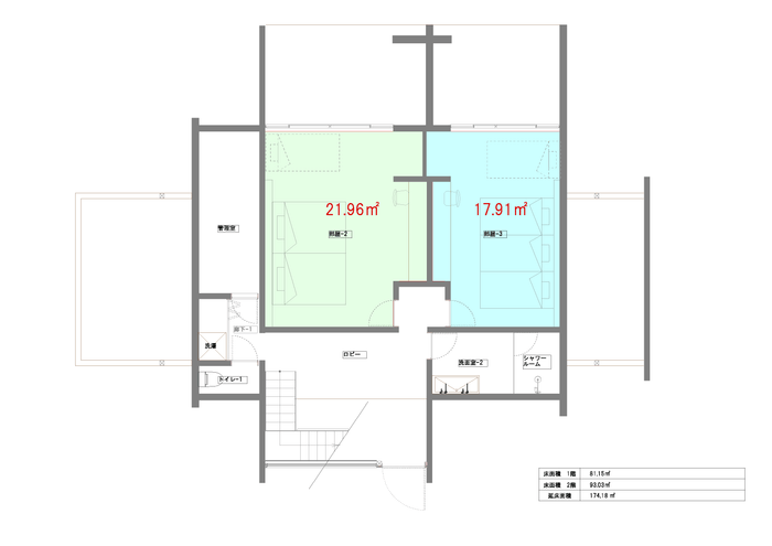
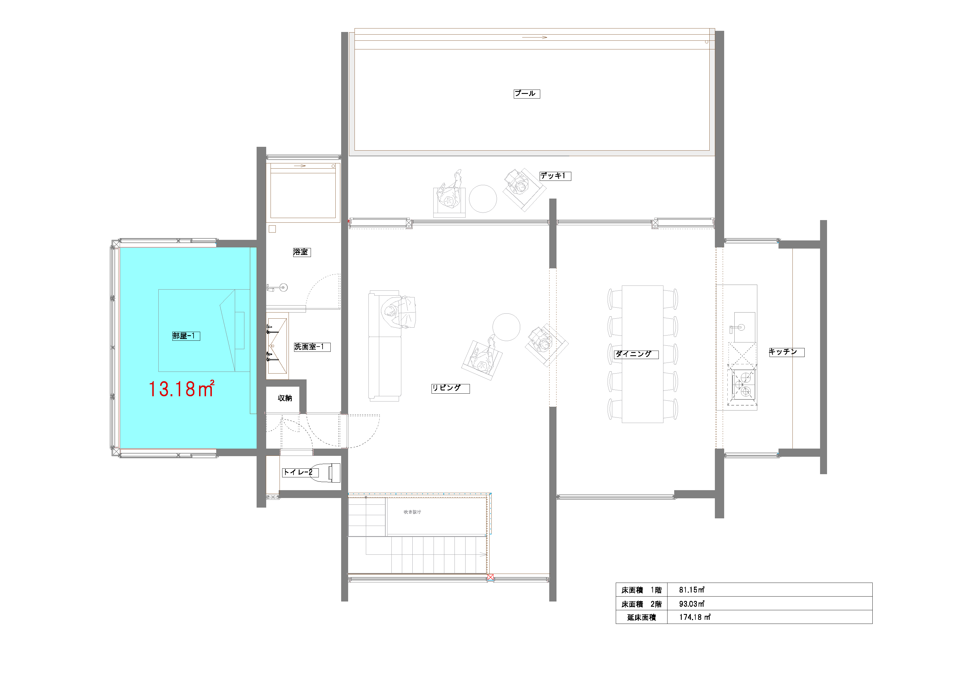
・1日1組限定、プールやバーベキュー施設などを完全なプライベート空間の中でご利用いただけます。また、3つのベッドルームを備えており大人数での利用にも最適です。
・目の前には淡路島の大自然。深い森、どこまでも広がる山とその向こうに落ちる太陽。そして、煌めく海。
・コンセプトは「大切な人と一緒に淡路島を堪能できる宿」。誰しも一緒に旅をするのは自分にとって大切な人であるはず。その大切な人と淡路島を堪能しながら過ごす時間が貴重なものになるように、そして故郷に帰ってくるように、少し懐かしさを感じたり安心感を得られたりするような場所に。自然の中でゆったりと過ごす時間が大切な人との時間を引き立たせます。
・淡路島の「食」を堪能いただけるよう、豊かな海・山の食材を仕入れ、提供します。島内の食品会社である森水産と嶋本食品の協力を得てBBQセットや鍋セットを提供します。また、キッチンや大型冷蔵冷凍庫も完備しており、お客様ご自身で料理を楽しんでいただくこともできます。
・「KITOW」のロゴは淡路島の書家/アーティスト、南岳杲雲の筆文字で作成。当施設の多くの部分が淡路島の人たちによってつくられています。


施設概要
施設名 : 淡路島のプール付き一棟貸し KITOW
所在地 : 〒656-1522 兵庫県淡路市下河合 字柿ノ木谷405-2
オープン日 : 2023年4月24日
予約受付開始日: 2023年2月20日
支払 : 事前決済(クレジットカードのみ)
業態 : スモールホテル
客室 : 全1室/1棟貸切
定員 : 10名
チェックイン : 15:00
チェックアウト: 11:00
料金 : 2名1泊¥69,500~
予約 : ホームページからの予約のみ
https://kitow.jp/
設計 : ヒラマツグミ一級建築士事務所 平松克啓
運営 : 株式会社ジーホワイト
電話番号 : 0798-23-2131
公式Instagram : https://www.instagram.com/kitow_awajishima/
会社概要
名称 : 株式会社ジーホワイト
代表者 : 五味岡 龍
本社所在地 : 兵庫県西宮市津門宝津町5-1
創立 : 平成17年7月
資本金 : 1,000万円
従業員数 : 40名
ホームページ: https://gwhite.co.jp





