限られた25m2で最大限の快適な暮らしに挑戦! 本格フィンランド式プライベートサウナ付きの賃貸住宅 「まる福はうす」
~活かしきれていなかった土地を、創造的に生まれ変わらせるプロジェクト~
株式会社福井地所(本社:神奈川県横浜市/代表取締役:福井 俊文)はこのたび、かつて雑草が生い茂り、不法投棄もあった“厳しい敷地条件”の中で、機能性とデザイン性を両立させた新しい賃貸住宅「まる福はうす」を横浜市中区打越に竣工いたしました。わずか25m2の限られた空間に、本格的なフィンランド式のプライベートサウナ、ロフト、床下収納、バイクスペースを融合した木の温もりを感じる物件です。狭い土地を有効活用し、若い世代のカップルや感度の高い層に向けて、『日常の中でととのう暮らし』を提案します。

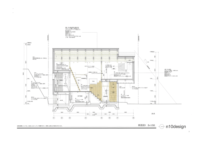
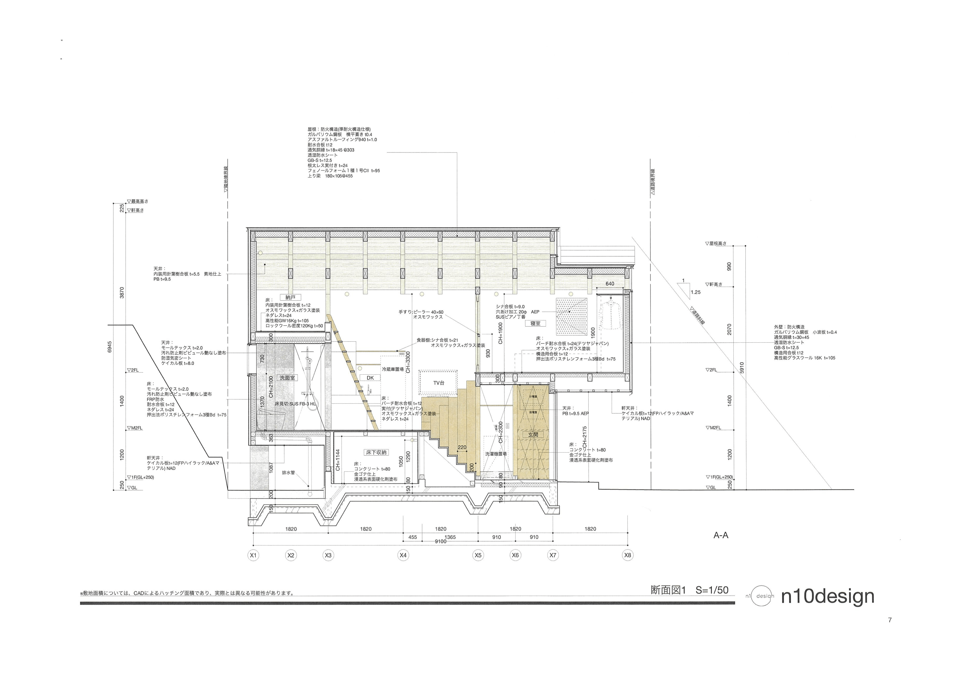
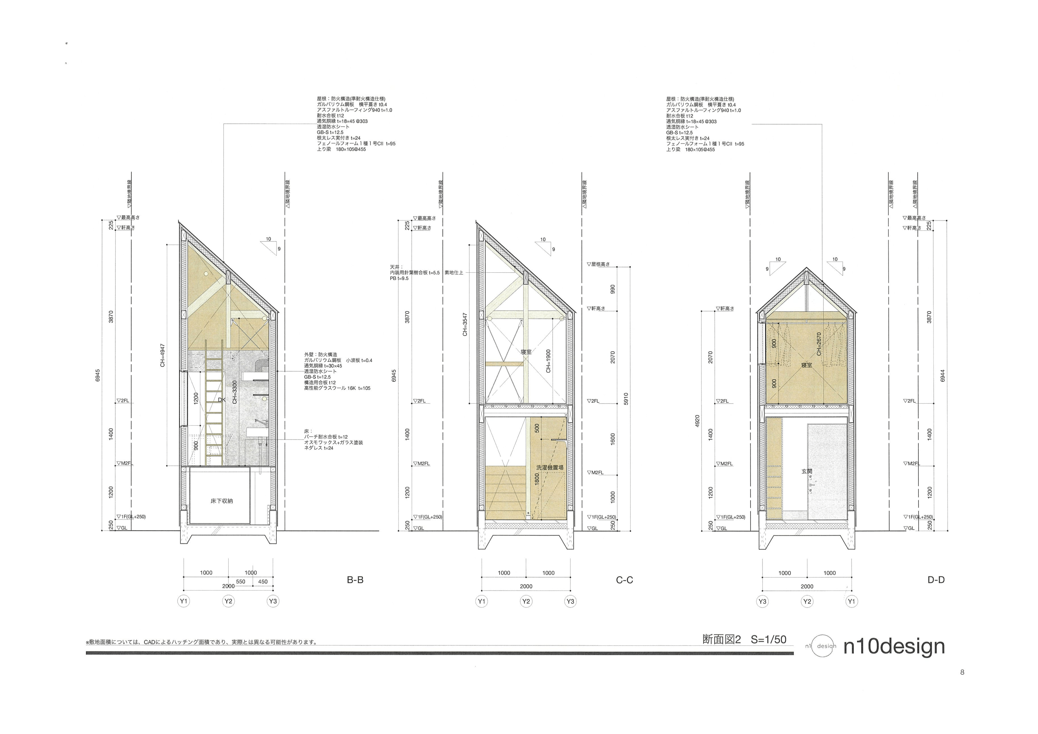
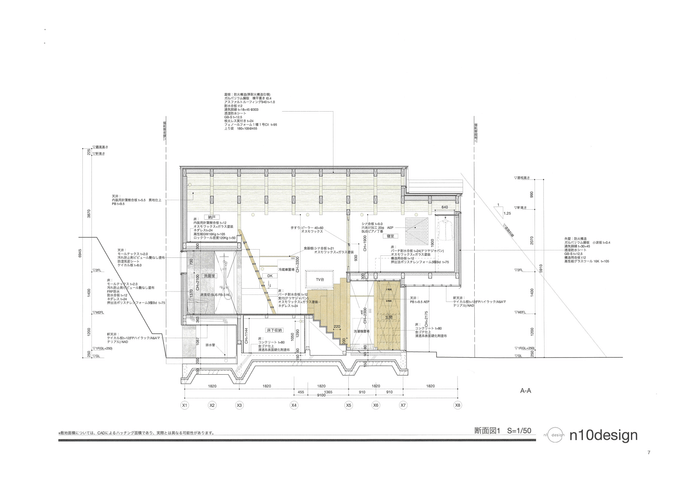
難易度の高い25m2の限られた立地で「垂直へ広がりある住宅」という挑戦
もともと一つの敷地を分割して生まれた間口約3m、面積25m2の狭小地。南北を住宅に挟まれ、西側は崖という、決して恵まれた環境ではありませんでした。この条件下で建築士が導き出したテーマが、「垂直方向へ広がりのある住宅」でした。玄関からリビング、寝室、ロフトへと連なるスキップフロア構成により、水平方向の制約を超えた“立体的な広がり”を実現しました。崖崩れへの安全対策として建物を高床化し、床下収納も設置。崖からの影響を軽減しつつ、リビングには高い天井を確保して開放感を演出しています。そして、キャンティレバー構造(一端が空中に浮いている構造)を採用し、限られた建蔽率の中で最大限の床面積を確保しながら、災害にも強い構造を実現しました。
“付加価値”として本格的なフィンランド式のプライベートサウナを導入
「駅から徒歩10分以上、急な坂道、狭い道」というデメリットを補うために提案されたのがサウナ。建築士の発案で、ミサ社製のサウナストーブを導入しました。
(1) ロウリュ対応の本格フィンランド式サウナ(最高温度95℃)
(2) ユニット型構造で清掃・交換が容易なメンテナンス性
(3) 水シャワー・物干し金物付きで、サウナ後のクールダウンや洗濯にも対応と、狭小住宅でありながら、“ととのう時間”を暮らしの中に組み込む設計となっております。
自由に暮らしを編集できる“デザイン住宅 × 賃貸物件”で若年層や感度の高い層がターゲット
「まる福はうす」は「縁起の良い“福”を招く家に」との想いが込められた、デザインやユニークな暮らしに価値を感じる若年層・カップル・感度の高い層をターゲットとしています。想定賃料は月額16万円程度。25m2ながら“サウナ付き・木のぬくもり・高天井・ロフトや床下収納”という希少性が高く、住む人が自由に暮らしを編集できる物件です。入居募集は2025年末から2026年明けにかけて開始予定となります。
限られた土地を最大限に有効活用し、地域再生にも繋げていきたい!
「雑草や不法投棄もあった活かしきれていなかった土地を、創造的に生まれ変わらせたい」そんな地域再生の想いから本プロジェクトが始まりました。制限の高い立地・面積で、夏場の暑い中、狭い道での資材搬入・行政手続きなどの課題も解決しながら、25m2という面積で「森の中のサウナロッジ」のような住宅を実現しました。汎用的な鉄板・合板・モルタルなどを組み合わせ、10年、20年先も更新可能な素材設計になっております。今後は、鎌倉の山中で「平屋×サウナ」の第二弾プロジェクトも構想中です。
会社概要
商号 : 株式会社福井地所
代表者 : 福井 俊文
所在地 : 〒220-0004 神奈川県横浜市西区北幸2-5-22 福井第2ビル1F
設立 : 1975年12月
資本金 : 10,000,000円
URL : https://f-jisho.com/








































