大成建設と共同でBIMとロボットを連携した施設点検を実証
『かわさき新産業創造センター(KBIC)』(所在地:神奈川県川崎市)に本社を置く、株式会社イクシス(本社:神奈川県川崎市、代表取締役Co-CEO:山崎文敬、狩野高志、以下 イクシス)は、大成建設株式会社(本社:東京都新宿区、代表取締役社長 相川善郎、以下 大成建設)と共同で、BIM登録情報とロボットを連携させた施設内設備点検の実証を行いました。
従来のロボットによる施設点検の課題
インフラ施設の老朽化や点検技術者不足を背景に、施設内設備点検の省力化が求められている中、ロボットによる施設点検の期待が高くなっているものの、実現に向けては下表のような課題があります。

今回の共同実証の内容
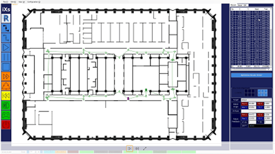
今回の共同実証では、イクシスの「i-Con Walker®※」技術を活用し、大成建設の実運用中のオフィス環境でロボット実機を稼働させて、次のことを実証しました。

今回の実証を通して、BIM登録情報とロボットを連携させた施設内点検の実現性が確認できました。




今後の取組み
大成建設は、IoTセンサやロボット等で集約した様々な建物内情報をBIM上で統合管理し、それらデジタルデータを建物利用者や管理者にて有効活用するためのシステムを開発中です。一方、イクシスは今後も、BIMとロボットの双方向連携技術である「i-Con Walker®」を機能拡充していきます。双方の取組みを活用しつつ、イクシスは大成建設と共同で設備点検ロボットとBIMを連携させた新たなデジタルツイン※の実現について検討していきます。
※SLAM:
SLAMは「Simultaneous Localization and Mapping」の略称であり、ロボットの自己位置推定(Localization)と、ロボット周囲の環境地図作成(Mapping)を同時に行う技術のことです。
※i-Con Walker®:
イクシスが開発したBIM/CIM※とロボットの双方向連携プラットフォームです。BIM/CIM上で自動巡回ロボットの行動計画を設計し、かつ自動巡回ロボットが現場環境から取得した情報をBIM/CIM上のデータに反映するようなことを実現することができます。
https://www.ixs.co.jp/product/2509

※BIM/CIM:
Building Information Modeling/ Construction Information Modeling(Management) 計画、調査、設計段階から3 次元モデルを導入することにより、その後の施工、維持管理の各段階において3 次元モデルを連携・発展させて事業全体にわたる関係者間の情報共有を容易にし、一連の建設生産・管理システムの効率化・高度化を図る取り組みです。
※デジタルツイン:
サイバー空間に現実空間をコピーし、シミュレーション予測等を行う技術
商標
「i-Con Walker®」は、イクシスの登録商標です。
株式会社イクシスの概要
イクシスは「ロボット×テクノロジーで社会を守る」をミッションとし、ロボットを利用したデータ取得・AI解析・3次元データ連携等、インフラ関連業界におけるDXを支援、そして社会課題の解決への貢献を目指しています。
設立 :1998年6月
所在地:神奈川県川崎市幸区新川崎7-7 AIRBIC内
代表者:Co-CEO兼CTO山崎 文敬、 Co-CEO狩野 高志
事業内容:社会・産業インフラ向けロボット及び特殊環境対応型ロボット等の開発・販売、取得データのAI解析サービス、3D-Data Solutionサービスの提供
KBIC概要
かわさき新産業創造センター(通称:KBIC)は、「新川崎・創造のもり」内に川崎市がベンチャー企業や企業の新分野進出の支援を目的とし整備した首都圏最大級のインキュベーション施設。現在、施設には50社を超える企業や大学の研究室が入居しており、入居企業の成長支援やオープンイノベーションの推進を行っている。
本発表資料のお問い合わせ先
株式会社イクシス
神奈川県川崎市幸区新川崎7-7 かわさき新産業創造センター(AIRBIC)内
Business Development Division
電話:044-589-1500 、メールアドレス:press@ixs.co.jp







